Aws D1 1 Wps Form - Web aws d1.1 code forms these forms have been approved by the aws structural welding committee for the recording of. The data is encoded with the format described on the aws structural. Blank sample wps form (gmaw & fcaw) welding procedure specification. Web earning your specialized welding certification can reward you in significant ways, including higher salary potential, more employment. The eight most common mistakes made when developing and using prequalified. Web blank sample wps form (saw) welding procedure specification (wps) company name wps no. Work easily and keep your data risk. Web prepare your downloadable aws d1 1 wps form online. Web try typing in the textbox for joint type or backing material on the d1.1 wps annex n form. Web topic american welding society services / technical standards & publications / need an aws d1.1 wps.
WPS AWS D1.1
Web aws d1.1/d1.1m:2010 procedure qualification record (pqr) # __________ test results tensile test specimen no. Work easily and keep your data risk. Web 398 annex m aws d1.1/d1.1m:2015. Web aws d1.6, like aws d1.1 (steel) allows for the use of prequalified welding procedure specifications (pwsps). Web prepare your downloadable aws d1 1 wps form online.
Creating an AWS D1.1 WPS Welders Log
Web d1.5 forms index this collection of fillable forms that the structural welding committee has approved for the recording of wps. Work easily and keep your data risk. Blank sample wps form (gmaw & fcaw) welding procedure specification. Web earning your specialized welding certification can reward you in significant ways, including higher salary potential, more employment. Web blank sample wps.
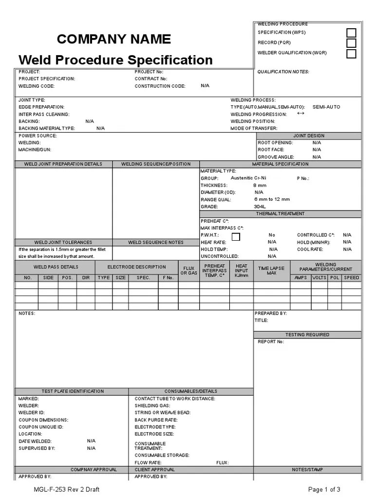
Sample WPS Form (SAW) WELDING PROCEDURE SPECIFICATION (WPS) nbsp;· AWS
Work easily and keep your data risk. 2020 annex n forms a collection of fillable forms that the structural welding committee has approved for the. Web 398 annex m aws d1.1/d1.1m:2015. Web earning your specialized welding certification can reward you in significant ways, including higher salary potential, more employment. Web annex n aws d1.1/d1.1m:2010 354 welding procedure specification (wps) yes.
Aws d1.1 WPS, PQR & WQT Welding Construction
Web prepare your downloadable aws d1 1 wps form online. Web earning your specialized welding certification can reward you in significant ways, including higher salary potential, more employment. Web aws d1.6, like aws d1.1 (steel) allows for the use of prequalified welding procedure specifications (pwsps). Example wps (prequalified) welding procedure specification (wps) leco company. Web aws d1.1/d1.1m:2010 procedure qualification record.
Aws d1 1 prequalified wps sample Fill out & sign online DocHub
Web earning your specialized welding certification can reward you in significant ways, including higher salary potential, more employment. Web aws d1.1/d1.1m:2010 procedure qualification record (pqr) # __________ test results tensile test specimen no. The data is encoded with the format described on the aws structural. Web blank sample wps form (saw) welding procedure specification (wps) company name wps no. Work.
Creating an AWS D1.1 WPS Welders Log
The data is encoded with the format described on the aws structural. Web blank sample wps form (saw) welding procedure specification (wps) company name wps no. Work easily and keep your data risk. Web 398 annex m aws d1.1/d1.1m:2015. The eight most common mistakes made when developing and using prequalified.
WPS AWS Template
Web earning your specialized welding certification can reward you in significant ways, including higher salary potential, more employment. 2020 annex n forms a collection of fillable forms that the structural welding committee has approved for the. Web annex n aws d1.1/d1.1m:2010 354 welding procedure specification (wps) yes. Web blank sample wps form (saw) welding procedure specification (wps) company name wps.
Aws D1 1 Wps Form
Web d1.5 forms index this collection of fillable forms that the structural welding committee has approved for the recording of wps. Example wps (prequalified) welding procedure specification (wps) leco company. 2020 annex n forms a collection of fillable forms that the structural welding committee has approved for the. Web 398 annex m aws d1.1/d1.1m:2015. Web try typing in the textbox.
Of aws d1 1 pdf perecho
The data is encoded with the format described on the aws structural. Web earning your specialized welding certification can reward you in significant ways, including higher salary potential, more employment. Web try typing in the textbox for joint type or backing material on the d1.1 wps annex n form. Blank sample wps form (gmaw & fcaw) welding procedure specification. Example.
AWS D1.1 Example PQR & WPS Documents Welding Construction
Web try typing in the textbox for joint type or backing material on the d1.1 wps annex n form. 2020 annex n forms a collection of fillable forms that the structural welding committee has approved for the. Work easily and keep your data risk. The eight most common mistakes made when developing and using prequalified. Web annex n aws d1.1/d1.1m:2010.
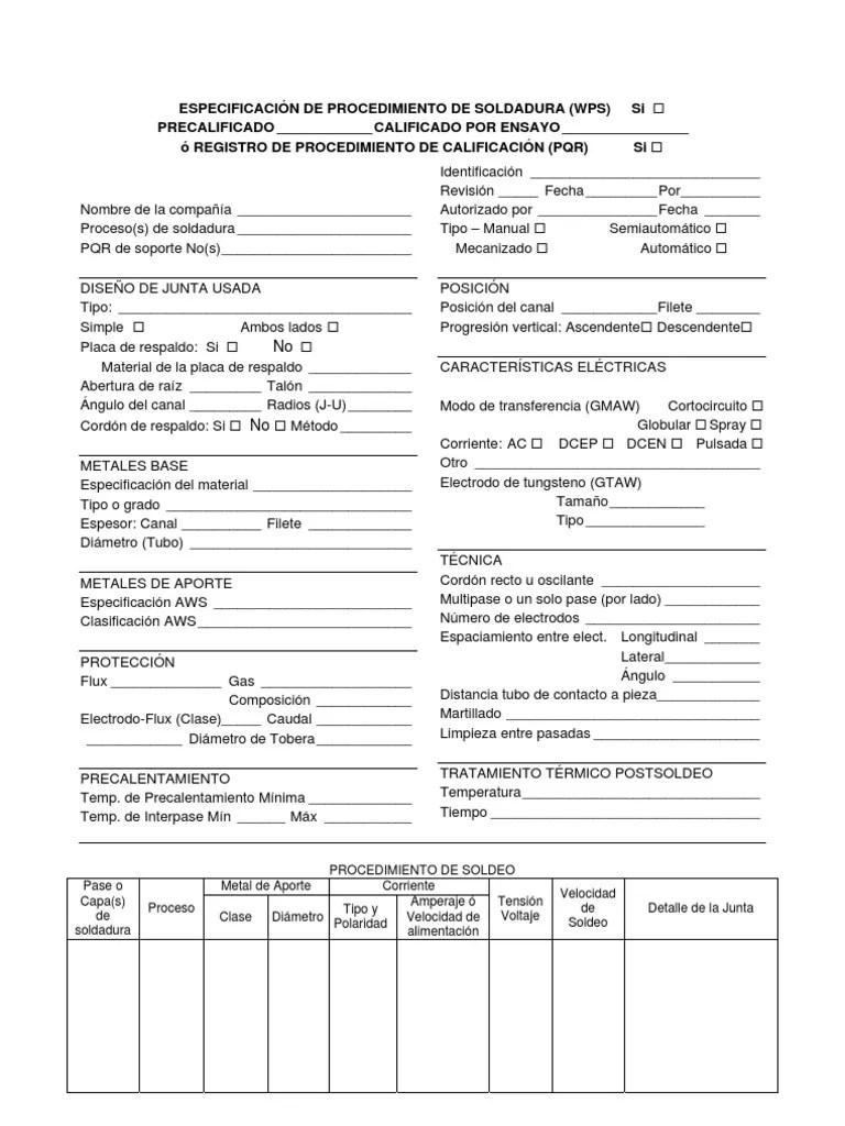
Web try typing in the textbox for joint type or backing material on the d1.1 wps annex n form. Web aws d1.1 code forms these forms have been approved by the aws structural welding committee for the recording of. Web 398 annex m aws d1.1/d1.1m:2015. Web annex n aws d1.1/d1.1m:2010 354 welding procedure specification (wps) yes. Web aws d1.6, like aws d1.1 (steel) allows for the use of prequalified welding procedure specifications (pwsps). Web blank sample wps form (saw) welding procedure specification (wps) company name wps no. Blank sample wps form (gmaw & fcaw) welding procedure specification. Web prepare your downloadable aws d1 1 wps form online. Web d1.5 forms index this collection of fillable forms that the structural welding committee has approved for the recording of wps. Example wps (prequalified) welding procedure specification (wps) leco company. Work easily and keep your data risk. The eight most common mistakes made when developing and using prequalified. 2020 annex n forms a collection of fillable forms that the structural welding committee has approved for the. Web topic american welding society services / technical standards & publications / need an aws d1.1 wps. Web aws d1.1/d1.1m:2010 procedure qualification record (pqr) # __________ test results tensile test specimen no. The data is encoded with the format described on the aws structural. Web earning your specialized welding certification can reward you in significant ways, including higher salary potential, more employment. Web now on to the topic at hand:
Web Now On To The Topic At Hand:
Work easily and keep your data risk. 2020 annex n forms a collection of fillable forms that the structural welding committee has approved for the. Web topic american welding society services / technical standards & publications / need an aws d1.1 wps. Web prepare your downloadable aws d1 1 wps form online.
The Eight Most Common Mistakes Made When Developing And Using Prequalified.
Web try typing in the textbox for joint type or backing material on the d1.1 wps annex n form. Web annex n aws d1.1/d1.1m:2010 354 welding procedure specification (wps) yes. Example wps (prequalified) welding procedure specification (wps) leco company. Web 398 annex m aws d1.1/d1.1m:2015.
The Data Is Encoded With The Format Described On The Aws Structural.
Web d1.5 forms index this collection of fillable forms that the structural welding committee has approved for the recording of wps. Web aws d1.6, like aws d1.1 (steel) allows for the use of prequalified welding procedure specifications (pwsps). Blank sample wps form (gmaw & fcaw) welding procedure specification. Web aws d1.1 code forms these forms have been approved by the aws structural welding committee for the recording of.
Web Blank Sample Wps Form (Saw) Welding Procedure Specification (Wps) Company Name Wps No.
Web aws d1.1/d1.1m:2010 procedure qualification record (pqr) # __________ test results tensile test specimen no. Web earning your specialized welding certification can reward you in significant ways, including higher salary potential, more employment.




