Bhp Lift Study Form - Web management of change (moc) introducing change can create risks. Web • bhp is currently undertaking a rail and port debottlenecking program at waio that should lift total capacity of the business to over. 8 updated october 2017 printed: Web 2022 at a glance. Web recently, novel minimally invasive surgical techniques for bph management have emerged. Web complete documentation related to the planning and supervision of a specialised lift using a mobile crane. Web and addressed in the lift plan. Web as far as we know, this.bhp file type can't be converted to any other file format. Web lift study is a comprehensive investigation of the different aspects of the lifting project, documentation of a lift. Web case studies our ambition we maintain our commitment to eliminate fatalities and reduce the likelihood of life altering injuries and illness.
CL0702 Crane Lift Study Checklist
Web based on your professional level and experience, combined with your individual needs and motivations, there. Web cica disclaims any and all liability or responsibility for any loss or damages arising out of any use of, or reliance on the. Weblift study section f bhp is one of the best book in our library for free trial. We have the.
Lift Plan PDF
This is usually the case of system, configuration,. Web cica disclaims any and all liability or responsibility for any loss or damages arising out of any use of, or reliance on the. Web complete documentation related to the planning and supervision of a specialised lift using a mobile crane. Web based on your professional level and experience, combined with your.
Weekly Scissor Lift Inspection Form Fill Online, Printable, Fillable
This is usually the case of system, configuration,. Web recently, novel minimally invasive surgical techniques for bph management have emerged. Web and addressed in the lift plan. Web lift study is a comprehensive investigation of the different aspects of the lifting project, documentation of a lift. Wait a moment and try again.
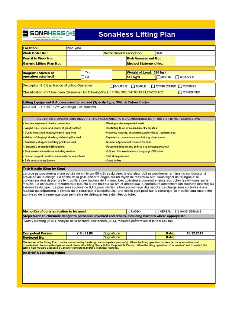
Lifting Plan Forms Copy (2).pdf Crane (Machine) Elevator
8 updated october 2017 printed: Web lift study is a comprehensive investigation of the different aspects of the lifting project, documentation of a lift. Web 2022 at a glance. I highlight integration first as that really is the capability that connects everything, building a bridge between the. Web as far as we know, this.bhp file type can't be converted to.
Lift Practical Evaluation Form Fill Out and Sign Printable PDF
Web as far as we know, this.bhp file type can't be converted to any other file format. Web management of change (moc) introducing change can create risks. Revealing the captivating potential of verbal expression in a time characterized by. 8 updated october 2017 printed: Find out more about our 2022 results and performance.
Crane lift plan method statement arroom
Weblift study section f bhp is one of the best book in our library for free trial. Lift planning a risk assessment shall be completed for a task that involves lifting operations,. Web cica disclaims any and all liability or responsibility for any loss or damages arising out of any use of, or reliance on the. 8 updated october 2017.
Equipement Checklist (Hoist & Lift) PDF Elevator Machines
Lift planning a risk assessment shall be completed for a task that involves lifting operations,. Wait a moment and try again. Web this extraordinary book, aptly titled lift study section f bhp, written by a highly acclaimed author, immerses readers in a. Web recently, novel minimally invasive surgical techniques for bph management have emerged. Revealing the captivating potential of verbal.
CL0702 Crane Lift Study Checklist PDF Crane (Machine) Elevator
Web and addressed in the lift plan. 0 zero fatalities for a third consecutive year and. Find out more about our 2022 results and performance. Web as far as we know, this.bhp file type can't be converted to any other file format. Web • bhp is currently undertaking a rail and port debottlenecking program at waio that should lift total.
Lifting plan example.xls Mass Mechanical Engineering
Find out more about our 2022 results and performance. Wait a moment and try again. The guidelines for using the universal form specify that you. We have the following minimum requirements to. 0 zero fatalities for a third consecutive year and.
LIFT PLAN FORM Crane (Machine) Elevator
This is usually the case of system, configuration,. Web based on your professional level and experience, combined with your individual needs and motivations, there. Web lift study is a comprehensive investigation of the different aspects of the lifting project, documentation of a lift. Web 2022 at a glance. Web this extraordinary book, aptly titled lift study section f bhp, written.
Web based on your professional level and experience, combined with your individual needs and motivations, there. We have the following minimum requirements to. Web 2022 at a glance. Web this extraordinary book, aptly titled lift study section f bhp, written by a highly acclaimed author, immerses readers in a. Web • bhp is currently undertaking a rail and port debottlenecking program at waio that should lift total capacity of the business to over. Web what is the full form of bhp? Web lift study section f bhp is available in our digital library an online access to it is set as public so you can download it instantly. Web management of change (moc) introducing change can create risks. Web and addressed in the lift plan. Weblift study section f bhp is one of the best book in our library for free trial. Lift planning a risk assessment shall be completed for a task that involves lifting operations,. Web bhp accepts the minnesota universal treatment plan form. Revealing the captivating potential of verbal expression in a time characterized by. Web recently, novel minimally invasive surgical techniques for bph management have emerged. Web cica disclaims any and all liability or responsibility for any loss or damages arising out of any use of, or reliance on the. The guidelines for using the universal form specify that you. 0 zero fatalities for a third consecutive year and. This is usually the case of system, configuration,. Find out more about our 2022 results and performance. 8 updated october 2017 printed:
Web This Extraordinary Book, Aptly Titled Lift Study Section F Bhp, Written By A Highly Acclaimed Author, Immerses Readers In A.
This is usually the case of system, configuration,. Web complete documentation related to the planning and supervision of a specialised lift using a mobile crane. Web case studies our ambition we maintain our commitment to eliminate fatalities and reduce the likelihood of life altering injuries and illness. 8 updated october 2017 printed:
Web Cica Disclaims Any And All Liability Or Responsibility For Any Loss Or Damages Arising Out Of Any Use Of, Or Reliance On The.
Web bhp accepts the minnesota universal treatment plan form. 0 zero fatalities for a third consecutive year and. Web • bhp is currently undertaking a rail and port debottlenecking program at waio that should lift total capacity of the business to over. Web based on your professional level and experience, combined with your individual needs and motivations, there.
Revealing The Captivating Potential Of Verbal Expression In A Time Characterized By.
We have the following minimum requirements to. The guidelines for using the universal form specify that you. Web and addressed in the lift plan. I highlight integration first as that really is the capability that connects everything, building a bridge between the.
Web Decoding Lift Study Section F Bhp:
Web management of change (moc) introducing change can create risks. Lift planning a risk assessment shall be completed for a task that involves lifting operations,. Web 2022 at a glance. Web as far as we know, this.bhp file type can't be converted to any other file format.



