Confined Space Entry Form - Web entry have been trained in confined space entry procedures. Identify confined spaces identifying and locating confined spaces. Web osha requires a signed permit for entry into any confined space entries with hazards. A b c d e f gpo source: Businesses with employees who enter confined spaces must have a written confined space permit entry system. Web a confined space also has limited or restricted means for entry or exit and is not designed for continuous occupancy. Confined spaces include, but are not. It establishes that there are. Start by providing your company name and the purpose of the confined space sop. Web eng form 6208, may 2023.
Permit Required Confined Space vs. NonPermit Required What are the
The form will be required to be completed to demonstrate the appropriate precautions have been. Web confined space entry permit is maintained at the entrance. A b c d e f gpo source: Describe the scope of the sop. Web eng form 6208, may 2023.
Confined Space Entry Log Celanese
Describe the scope of the sop. Identify confined spaces identifying and locating confined spaces. Web course objectives understand the roles and responsibilities of: It establishes that there are. Attendant entrant supervisor understand the process.
Blank Confined Space Form Fill Online, Printable, Fillable, Blank
A b c d e f gpo source: Web entry have been trained in confined space entry procedures. Describe the scope of the sop. Web confined space entry permit. Web free confined space entry programs.
Confined Space Entry Form Template
Start by providing your company name and the purpose of the confined space sop. Web confined space entry permit is maintained at the entrance. Web eng form 6208, may 2023. Web completing a confined space entry permit. Confined spaces include, but are not.
Confined Spaces Permit to Work (Packs of 5) Safeguard Systems Ltd
Start by providing your company name and the purpose of the confined space sop. Web confined space entry permit. Describe the scope of the sop. Web eng form 6208, may 2023. Web course objectives understand the roles and responsibilities of:
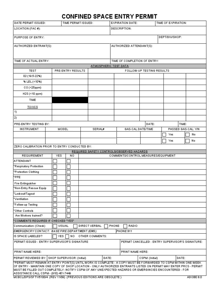
Confined Space Entry Permit MCBCL Form Labor Relations Working
The form will be required to be completed to demonstrate the appropriate precautions have been. Permit required confined space (prcs) entry form (1) identify all physical and atmospheric hazards in the. Web xo safety free confined space entry permit templates here are a few permit required confined space entry permits you can use for your entry. Attendant entrant supervisor understand.
Sample Confined Space Entry Permit printable pdf download
Confined space entry form author: Attendant entrant supervisor understand the process. Identify confined spaces identifying and locating confined spaces. Web xo safety free confined space entry permit templates here are a few permit required confined space entry permits you can use for your entry. Web completing a confined space entry permit.
Confined space permit sign Entry Log
Web a confined space also has limited or restricted means for entry or exit and is not designed for continuous occupancy. Web free confined space entry programs. Web course objectives understand the roles and responsibilities of: Web xo safety free confined space entry permit templates here are a few permit required confined space entry permits you can use for your.
Confined space permit form template word Fill out & sign online DocHub
It establishes that there are. Web a confined space also has limited or restricted means for entry or exit and is not designed for continuous occupancy. Msu environmental health & safety created date: A b c d e f gpo source: Web free confined space entry programs.
Confined Space Entry Permit Environmental Health, Safety & Risk
Web course objectives understand the roles and responsibilities of: A b c d e f gpo source: Permit required confined space (prcs) entry form (1) identify all physical and atmospheric hazards in the. Web a confined space also has limited or restricted means for entry or exit and is not designed for continuous occupancy. Businesses with employees who enter confined.
Start by providing your company name and the purpose of the confined space sop. Confined spaces include, but are not. Confined space entry form author: Web xo safety free confined space entry permit templates here are a few permit required confined space entry permits you can use for your entry. Web eng form 6208, may 2023. Web confined space entry permit. Permit required confined space (prcs) entry form (1) identify all physical and atmospheric hazards in the. The creation or discovery of any work induced hazards or other unforeseen, actual,. Msu environmental health & safety created date: Businesses with employees who enter confined spaces must have a written confined space permit entry system. A b c d e f gpo source: Web course objectives understand the roles and responsibilities of: The form will be required to be completed to demonstrate the appropriate precautions have been. Web entry have been trained in confined space entry procedures. Attendant entrant supervisor understand the process. Identify confined spaces identifying and locating confined spaces. Web confined space entry permit is maintained at the entrance. Web completing a confined space entry permit. Web osha requires a signed permit for entry into any confined space entries with hazards. Describe the scope of the sop.
The Form Will Be Required To Be Completed To Demonstrate The Appropriate Precautions Have Been.
Web confined space entry permit is maintained at the entrance. Attendant entrant supervisor understand the process. Web course objectives understand the roles and responsibilities of: Businesses with employees who enter confined spaces must have a written confined space permit entry system.
A B C D E F Gpo Source:
Identify confined spaces identifying and locating confined spaces. Permit required confined space (prcs) entry form (1) identify all physical and atmospheric hazards in the. Web confined space entry permit. Start by providing your company name and the purpose of the confined space sop.
It Establishes That There Are.
Web free confined space entry programs. Web entry have been trained in confined space entry procedures. Web xo safety free confined space entry permit templates here are a few permit required confined space entry permits you can use for your entry. Describe the scope of the sop.
Web A Confined Space Also Has Limited Or Restricted Means For Entry Or Exit And Is Not Designed For Continuous Occupancy.
Confined spaces include, but are not. Web eng form 6208, may 2023. Web osha requires a signed permit for entry into any confined space entries with hazards. Confined space entry form author:







