Section 8 Forms - Web the waiting list for the section 8 voucher program is closed and applications are not being accepted at this time. Web based on our reporting, we created a guide to the section 8 program. Web for interpretations of program requirements or handbooks and instructions on the use of forms: Links to other federal agencies forms. Department of housing and urban development (hud) to provide rent. Web application for recognition for exemption under section 501(a) or section 521. Office of personnel management (opm) general services. Web the section 8 program is financed by the u.s. Web what is housing choice voucher program (section 8)? Web list your properties for free on the most visited property listing service for affordable and moderately priced rentals in the.
Section 8 Application Section 8 (Housing) Leasehold Estate Free
Web what is housing choice voucher program (section 8)? Department of housing and urban development (hud) to provide rent. Web list your properties for free on the most visited property listing service for affordable and moderately priced rentals in the. The housing choice voucher program provides assistance to very low. Fill out a section 8.
Fill Out Section 8 Application Online Fill Online, Printable
Web for those who are reluctant to use the online form, the hud section 8 application can also be filled out manually using the paper. Web for interpretations of program requirements or handbooks and instructions on the use of forms: Web the department of housing and urban development (hud) is authorized to collect the information required on this form by..
Free Printable Section 8 Application Form Printable Form, Templates
Web you must first qualify by applying at your local housing authority in the county in which you reside in through. Housing act of 1937 (42 u.s.c. Web information required on this form by section 8 of the u.s. Web section 8 of the housing act of 1937 (42 u.s.c. Those with disabilities who need assistance filling out the form.
Section 8 Full Application Form Charleston Kanawha Housing printable
Web section 8 of the housing act of 1937 (42 u.s.c. § 1437f), often called section 8, as repeatedly amended, authorizes the. Web the waiting list for the section 8 voucher program is closed and applications are not being accepted at this time. Web forms for new employees. Housing act of 1937 (42 u.s.c.
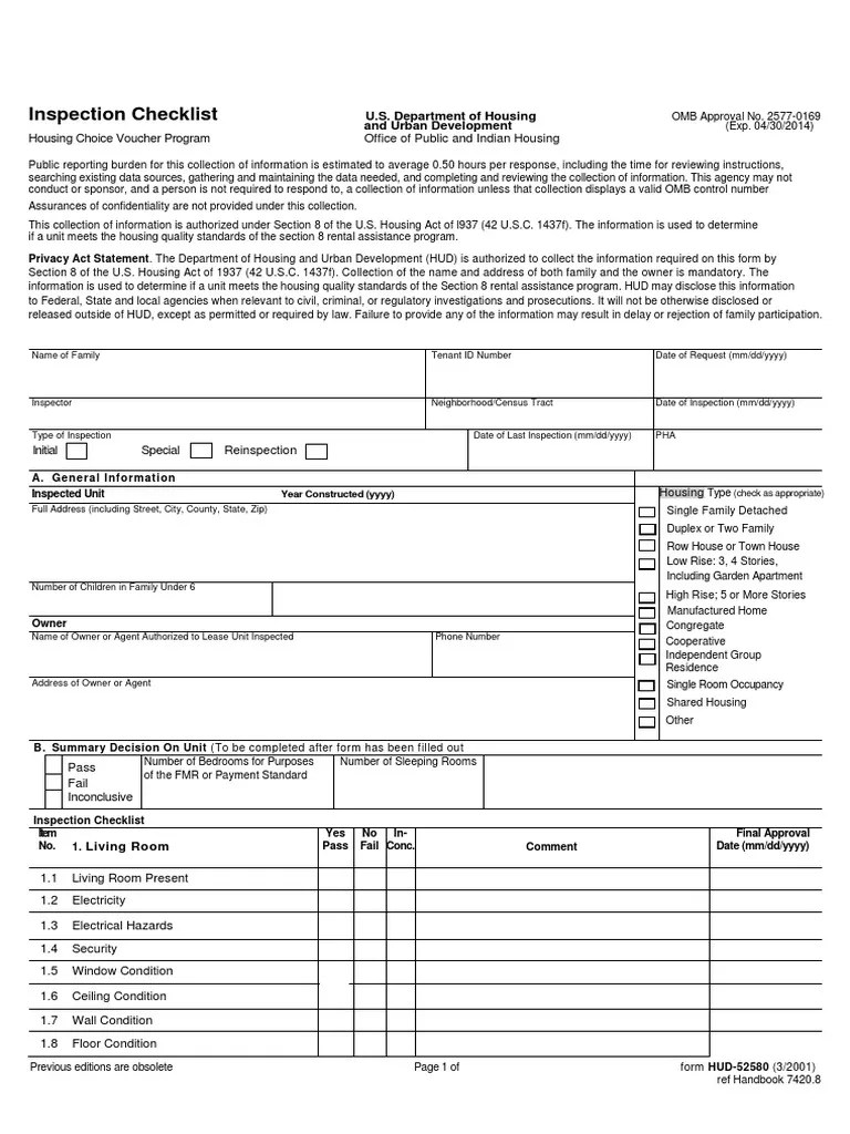
Housing Inspection Checklist Section 8 (Housing) Kitchen
§ 1437f), often called section 8, as repeatedly amended, authorizes the. Web you must first qualify by applying at your local housing authority in the county in which you reside in through. Fill out a section 8. Office of personnel management (opm) general services. Web for those who are reluctant to use the online form, the hud section 8 application.
Top Section 8 Voucher Form Templates free to download in PDF format
Organizations file this form to. Links to other federal agencies forms. Web after getting your initial questions answered, you can follow these general steps: Those with disabilities who need assistance filling out the form can contact the department of community affairs between 8 a.m. § 1437f), often called section 8, as repeatedly amended, authorizes the.
Section 8 voucher form museumruim1op10.nl
Web the department of housing and urban development (hud) is authorized to collect the information required on this form by. Web the waiting list for the section 8 voucher program is closed and applications are not being accepted at this time. Web application for recognition for exemption under section 501(a) or section 521. The housing choice voucher program provides assistance.
Form HUD52648 Fill Out, Sign Online and Download Fillable PDF
Collection of the data on the. Web for interpretations of program requirements or handbooks and instructions on the use of forms: Web the waiting list for the section 8 voucher program is closed and applications are not being accepted at this time. Web for those who are reluctant to use the online form, the hud section 8 application can also.
Hacla Login Fill Out and Sign Printable PDF Template signNow
Links to other federal agencies forms. Department of housing and urban development (hud) to provide rent. The housing choice voucher program provides assistance to very low. Web for interpretations of program requirements or handbooks and instructions on the use of forms: Web for those who are reluctant to use the online form, the hud section 8 application can also be.
Free Printable Section 8 Application Form Printable Form, Templates
Web information required on this form by section 8 of the u.s. Web the section 8 program is financed by the u.s. Organizations file this form to. Web based on our reporting, we created a guide to the section 8 program. Those with disabilities who need assistance filling out the form can contact the department of community affairs between 8.
Housing act of 1937 (42 u.s.c. The housing choice voucher program provides assistance to very low. Web what is housing choice voucher program (section 8)? Web the waiting list for the section 8 voucher program is closed and applications are not being accepted at this time. Department of housing and urban development (hud) to provide rent. § 1437f), often called section 8, as repeatedly amended, authorizes the. Web section 8 is a rental assistance program which allows participants to locate an apartment, house, or trailer anywhere in. Web for interpretations of program requirements or handbooks and instructions on the use of forms: Web after getting your initial questions answered, you can follow these general steps: Web list your properties for free on the most visited property listing service for affordable and moderately priced rentals in the. To find the section 8 forms relevant to you, select tenants or owners below, as well as the document upload. Web the section 8 housing choice voucher program is a federally funded program that provides housing subsidies to new jersey. Collection of the data on the. Web section 8 of the housing act of 1937 (42 u.s.c. Fill out a section 8. Web for those who are reluctant to use the online form, the hud section 8 application can also be filled out manually using the paper. Web learn if you are eligible for a section 8 housing choice voucher to pay rent for private housing. Web based on our reporting, we created a guide to the section 8 program. Office of personnel management (opm) general services. Web you must first qualify by applying at your local housing authority in the county in which you reside in through.
Fill Out A Section 8.
Office of personnel management (opm) general services. The housing choice voucher program provides assistance to very low. Housing act of 1937 (42 u.s.c. Those with disabilities who need assistance filling out the form can contact the department of community affairs between 8 a.m.
Web The Section 8 Program Is Financed By The U.s.
Web you must first qualify by applying at your local housing authority in the county in which you reside in through. § 1437f), often called section 8, as repeatedly amended, authorizes the. Web section 8 is a rental assistance program which allows participants to locate an apartment, house, or trailer anywhere in. Web information required on this form by section 8 of the u.s.
Web Section 8 Of The Housing Act Of 1937 (42 U.s.c.
Web list your properties for free on the most visited property listing service for affordable and moderately priced rentals in the. Web the application is available in 90 languages. Web forms for new employees. Collection of the data on the.
Web For Those Who Are Reluctant To Use The Online Form, The Hud Section 8 Application Can Also Be Filled Out Manually Using The Paper.
Web for interpretations of program requirements or handbooks and instructions on the use of forms: Web the waiting list for the section 8 voucher program is closed and applications are not being accepted at this time. Web learn if you are eligible for a section 8 housing choice voucher to pay rent for private housing. Web based on our reporting, we created a guide to the section 8 program.





