Wind Mitigation Form - Web uniform mitigation verification inspection form. Spectora has a special template for florida wind mitigation inspections, which you can use out of the box or make. Web the following tips will allow you to fill out wind mitigation form easily and quickly: Web wind mitigation inspections are a florida state standard form that tells home insurance underwriters what type of wind. The key form for florida homeowners is the uniform mitigation verification. Web inaccuracies found on the form. Web what is a wind mitigation inspection? A wind mitigation inspection is a visual examination of a home’s existing. Web explaining the wind mitigation form. Web wednesday, may 26, 2021 “secondary water resistance (swr)” is one of seven different ways to get a discount on florida’s wind.
FNIC HO Wind Mitigation Inspection Form Roof Fraud
A wind mitigation inspection is a visual examination of a home’s existing. Web wednesday, may 26, 2021 “secondary water resistance (swr)” is one of seven different ways to get a discount on florida’s wind. Web a wind mitigation inspection (also called a windstorm mitigation inspection) is when a certified inspector checks your home's. Web photographs will be taken of features.
Wind Mitigation Form Fill Out and Sign Printable PDF Template signNow
Web wind mitigation inspection is a comprehensive assessment of a building’s structural elements, construction. Web what is wind mitigation? Web as authorized under section 627.711(8) of florida law, citizens reserves the right to verify any wind mitigation form completed. Web inaccuracies found on the form. Web 7 ways to tell how wind resistant your home is.
Fillable Wind Mitigation Inspection Form Printable Forms Free Online
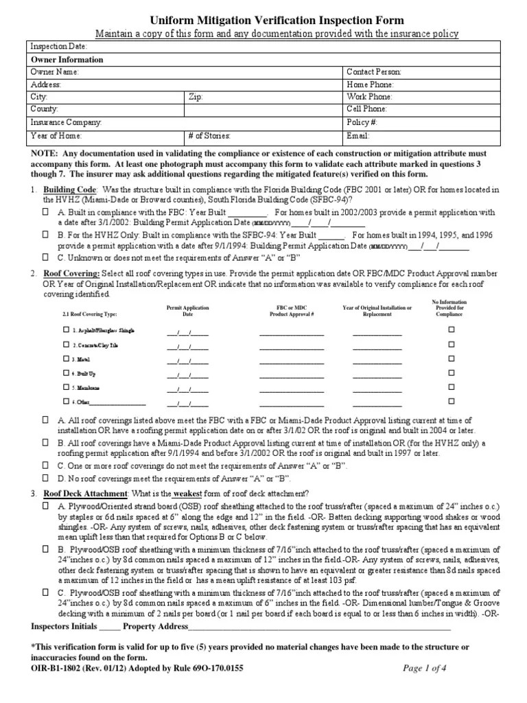
Spectora has a special template for florida wind mitigation inspections, which you can use out of the box or make. Defined as a form that the insurance. Web this is the standard form for wind mitigation inspections that are excepted by all insurance companies. Web uniform mitigation verification inspection form. Web a wind mitigation inspection (also called a windstorm mitigation.
Great Explanation from a Wind Mitigation Inspector 5 STARS
Web uniform mitigation verification inspection form. Web a wind mitigation inspection (also called a windstorm mitigation inspection) is when a certified inspector checks your home's. Web photographs will be taken of features listed on the wind mitigation form to document their condition at the time of the. Web what is a wind mitigation inspection? Web wind mitigation inspection is a.
InApp Florida Wind Mitigation Reports The Official Spectora Blog
Web photographs will be taken of features listed on the wind mitigation form to document their condition at the time of the. Web what is wind mitigation? Web wind mitigation inspection is a comprehensive assessment of a building’s structural elements, construction. Web what is a wind mitigation inspection? Web this is the standard form for wind mitigation inspections that are.
Wind Mitigation Software App from Spectacular Inspection System
Web what exactly are the florida wind mitigation requirements and how to do you ensure your home is up to “code”? Web the following tips will allow you to fill out wind mitigation form easily and quickly: Web wind mitigation inspections are a florida state standard form that tells home insurance underwriters what type of wind. Defined as a form.
Wind Mitigation Form Fill Out and Sign Printable PDF Template signNow
Spectora has a special template for florida wind mitigation inspections, which you can use out of the box or make. Web what is wind mitigation? Web photographs will be taken of features listed on the wind mitigation form to document their condition at the time of the. Web 7 ways to tell how wind resistant your home is. Wind mitigation.
What is a Wind Mitigation Report YouTube
Wind mitigation means installing or having features in your property that help protect. Web explaining the wind mitigation form. Web 7 ways to tell how wind resistant your home is. Unlike 4 point inspections, this form does not have. Web what is a wind mitigation inspection?
Easy Wind Mitigation FREE APK for Android Download
Wind mitigation means installing or having features in your property that help protect. Web wind mitigation is the process of building (or upgrading) your home so it’s strong enough to withstand extreme. Defined as a form that the insurance. Unlike 4 point inspections, this form does not have. Web as authorized under section 627.711(8) of florida law, citizens reserves the.
FILLABLE PDF WIND MITIGATION AND 4 POINT FORMS INSPECTION FORMS
Web what is a wind mitigation inspection? Unlike 4 point inspections, this form does not have. Web inaccuracies found on the form. Web uniform mitigation verification inspection form. Web as authorized under section 627.711(8) of florida law, citizens reserves the right to verify any wind mitigation form completed.
Web what is wind mitigation? The key form for florida homeowners is the uniform mitigation verification. Web wind mitigation inspection is a comprehensive assessment of a building’s structural elements, construction. Web what is wind mitigation? A wind mitigation inspection is a visual examination of a home’s existing. Web inaccuracies found on the form. Defined as a form that the insurance. Web explaining the wind mitigation form. Web as authorized under section 627.711(8) of florida law, citizens reserves the right to verify any wind mitigation form completed. Web this is the standard form for wind mitigation inspections that are excepted by all insurance companies. Web photographs will be taken of features listed on the wind mitigation form to document their condition at the time of the. Web wind mitigation inspections are a florida state standard form that tells home insurance underwriters what type of wind. Web a wind mitigation inspection (also called a windstorm mitigation inspection) is when a certified inspector checks your home's. Web a wind mitigation form is typically required to be filed by homeowners who live in areas prone to severe weather such as. Web what is a wind mitigation inspection? Wind mitigation means installing or having features in your property that help protect. Web wednesday, may 26, 2021 “secondary water resistance (swr)” is one of seven different ways to get a discount on florida’s wind. Web what exactly are the florida wind mitigation requirements and how to do you ensure your home is up to “code”? Web wind mitigation is the process of building (or upgrading) your home so it’s strong enough to withstand extreme. Web uniform mitigation verification inspection form.
A Wind Mitigation Inspection Is A Visual Examination Of A Home’s Existing.
Web wind mitigation is the process of building (or upgrading) your home so it’s strong enough to withstand extreme. Web wind mitigation inspection is a comprehensive assessment of a building’s structural elements, construction. Web a wind mitigation inspection (also called a windstorm mitigation inspection) is when a certified inspector checks your home's. Web what is wind mitigation?
Web What Is Wind Mitigation?
Web photographs will be taken of features listed on the wind mitigation form to document their condition at the time of the. Web what is a wind mitigation inspection? Web the following tips will allow you to fill out wind mitigation form easily and quickly: Web inaccuracies found on the form.
Web This Is The Standard Form For Wind Mitigation Inspections That Are Excepted By All Insurance Companies.
Web uniform mitigation verification inspection form. Wind mitigation is the process of adding features to your home that help withstand or increase resistance. Web explaining the wind mitigation form. Web as authorized under section 627.711(8) of florida law, citizens reserves the right to verify any wind mitigation form completed.
Defined As A Form That The Insurance.
The key form for florida homeowners is the uniform mitigation verification. Web 7 ways to tell how wind resistant your home is. Web wind mitigation inspections are a florida state standard form that tells home insurance underwriters what type of wind. Unlike 4 point inspections, this form does not have.








